BROOKE CHARTER SCHOOL ROSLINDALE

Roslindale, BOSTON, MA

K-8 Feasibility Study and Building Addition + Renovation
Completion: Ongoing (Construction Documents Phase)
Addition GSF: 3,495
Interior Renovation GSF: 3,120
New Total GSF: 69,328

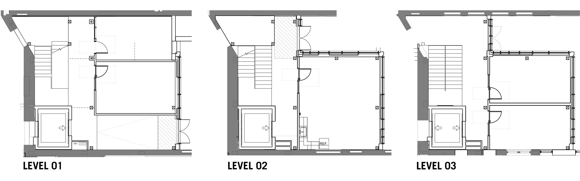
Project Overview

Brooke Charter School Roslindale serves 600 students across grades kindergarten through eight in the Roslindale Neighborhood of Boston. In support of Brooke’s values to create inclusive, supportive educational environments for their students, Studio Luz was engaged to perform critical accessibility upgrades and envision additional spaces to accommodate student and staff success. Our team worked closely with Brooke’s staff, beginning with pre-schematic feasibility and culminating in full design services. Interior and exterior renovations of a historic structure meet at a mass timber and glass addition, reinventing circulation through the school and supporting small-group, individualized learning.

Project Team

Hansy Better Barraza
Anthony Piermarini
Sarah Pumphrey
Paul Dahlke
Kaitlin Pettenger
Leena Ismail
Michael Darby

Client

Brooke Charter School

Agency

Massachusetts Division of Capital Asset Management & Maintenance (DCAMM)

Landscape Architect

Klopfer Martin Design Group

Structural Engineer

RSE Associates

Civil Engineer

Nitsch Engineering

INCLUSIVE ACCESS, EXPANDED LEARNING

ACCESSIBILITY AS A DRIVER FOR DESIGN

Driven by the need to create an inclusive, accessible environment for Brooke’s faculty and students, our team approached accessibility not as an afterthought, but as a catalyst for augmenting the school’s educational support spaces. The result: an addition where ease of access and thoughtful design come together to use the existing building more efficiently, while creating new spaces for student success.

A CONTEMPORARY LINK

BRIDGING HISTORY WITH MODERNITY

The buildings that Brooke Roslindale calls home are an ensemble of structures dating back to the early 1900s. This new addition honors that history, thoughtfully preserving architectural details while improving functionality. It streamlines circulation, activates previously underutilized spaces, strengthens connections to the outdoors, and creates a new “front” of the school, designed to warmly welcome the Brooke community.

ENGINEERED IN TIMBER

INNOVATIVE SUSTAINABILITY

Designing with cross-laminated timber reflects Brooke and Studio Luz’ shared commitment to growth and innovation. Use of mass timber for this design is driven by a belief in quality, lasting structure, sustainability, and our position that everyday spaces can inspire.

V.4-diagram

ABOUT BROOKE CHARTER SCHOOL

IN ROSLINDALE

Brooke Charter School is “a network of high-performing charter public schools in Boston”. Brooke’s Roslindale Campus opened in 2002 as Brooke Charter’s first location, and serves grades K-8. The facility consists of a main school building built in 1916, with additions built in 1920, 1956, and 1961, spanning over four parcels that total 1.6 acres. Brooke Charter School families primarily live in the Dorchester, Hyde Park, East Boston, Mattapan, Chelsea, and Roxbury neighborhoods of Boston. Brooke Roslindale consists of 62,000 square feet of indoor educational and administrative space, alongside 38,400 square feet of outdoor space, including the playground and interior courtyard. Studio Luz and our team of consultants are working to design spaces that help continue Brooke Roslindale’s legacy of supportive and exceptional education.