LOUISE HAFFNER FOURNIER EDUCATION CENTER AT NECC

LAWRENCE, MA

Higher Education Programming + Feasibility Study
Completion: 2026 (Preschematic Design Phase)

Project Overview

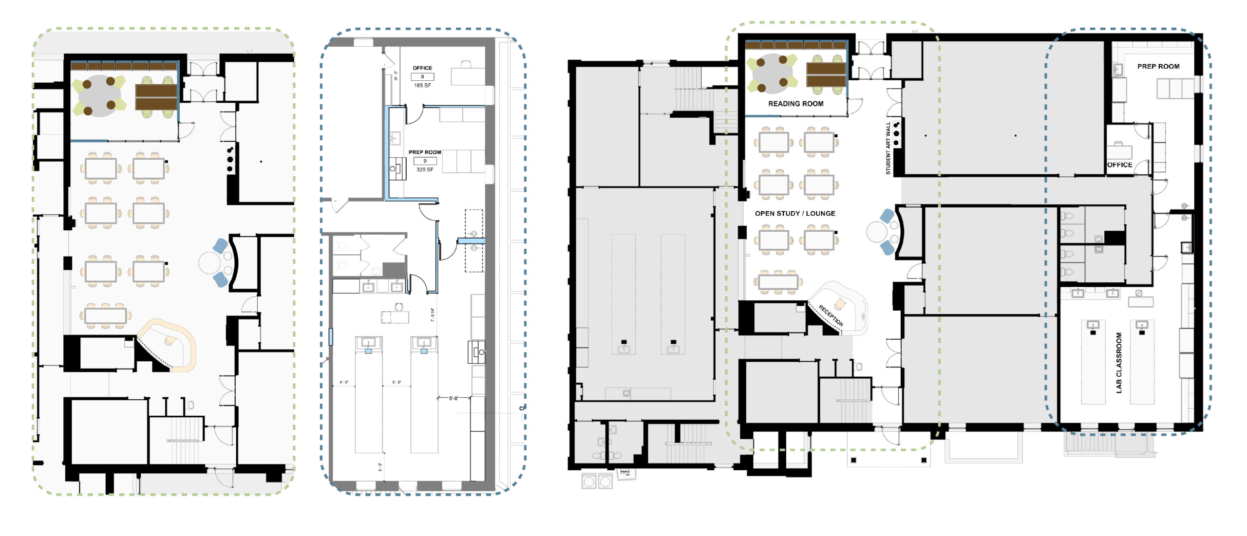
The Louise Haffner Fournier Education Center was added to the Northern Essex Community College Lawrence campus in 1999, providing two new science labs as well as additional classrooms and office space. In 2025, to accommodate growing enrollment and demand for science courses, the challenge was to add a new laboratory classroom and lobby improvements for a student body lacking sufficient access to quiet study and lounge space. SLA proposed a lobby renovation adding color and texture for a welcoming gathering area, and the team found efficiencies to insert a new quiet reading room, add a display area for student work, and enlarge the open group study space to double as event space. Circulation was improved with a redesigned reception area. SLA worked within a tight existing footprint to propose converting redundant classrooms and storage into a new general science laboratory with adjoined prep room and office.

Project Team

Hansy Better Barraza
Sophie Nahrmann
Leechen Zhu
Joshua Ssebuwufu

Client

Northern Essex Community College

usability and comfort

BRINGING LIFE TO UNDERUSED SPACE

This project revitalizes an underutilized lobby space, bringing student life and academia into previously interstitial spaces. Creating a comfortable space that supports academics, collaboration, and learning will bring students into the building and support NECC’s mission of providing a welcoming, collaborative environment for their diverse community of learners.

SPATIAL VARIETY

MULTIPLICITY OF USE AT A COMPACT SCALE

Successful students need study spaces. Through this project, NECC is prioritizing student access to study spaces that inspire focus and collaboration. Studio Luz worked to provide increased square footage and diversity of choice in study spaces in this project by transforming an underutilized building into a multifunctional campus resource.

REFLECTING CHANGING NEEDS

MAKING SPACe for enrollment trends

As interest in NECC’s science programs continues to rise, the college partnered with SLA to rethink how laboratory spaces could better serve both current and future students. Through the transformation of underutilized areas into high-performance science labs and prep spaces, NECC is expanding capacity while enhancing the quality of hands-on instruction in these rapidly growing fields.

ABOUT the FEASIBILITY STUDY

FOR NORTHERN ESSEX COMMUNITY COLLEGE

Studio Luz Architects partnered with Northern Essex Community College to reimagine the Louise Haffner Fournier Education Center, revitalizing a building largely unchanged since 1999. Driven by growing enrollment and increased demand for science programs, the project transforms existing space into flexible labs, collaborative study areas, student lounges, and gallery space. The design reflects NECC’s core values of collaboration, inclusion, and academic excellence—creating a welcoming, future-ready environment for today’s learners and those to come.